翼ハウジング
  • ホーム
  • 会社概要
  • おすすめ物件情報
  • 当社施工例
  • お問い合わせ
  • ホーム
  • 会社概要
  • おすすめ物件情報
    • 売土地
    • 一戸建
    • マンション
    • 賃貸物件
    • その他
    • 当社事業主物件
  • 当社施工例
    • 京都市南区Y様邸
  • お問い合わせ
  • 売土地
  • 一戸建
  • マンション
  • 賃貸物件
  • その他
  • 当社事業主物件
  1. おすすめ物件情報
  2. マンション
外観
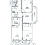
間取り
アルコープ
LDK1
洋室6帖
洋室5帖
LDK2
キッチン
和室6帖
押入
バスルーム
洗面化粧台
トイレ
南側バルコニーからの風景
東側バルコニーからの風景
その他

株式会社翼ハウジング

〒601-1456

京都市伏見区小栗栖南後藤町12-6

TEL : 075-573-4440 フリーダイヤル:0120-757-283

FAX : 075-573-4441 

E-mail: tsubasa-h@proof.ocn.ne.jp


概要 | プライバシーポリシー | サイトマップ
ログイン ログアウト | 編集
  • トップへ戻る
閉じる